Description

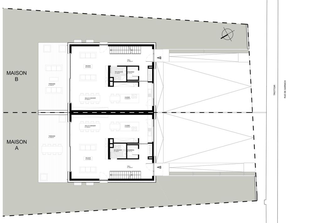
CONSTRUCTION DE 2 MAISONS UNIFAMILALES JUMELÉES


LIEU Kahler
SURFACE -
CLASSE ÉNERGÉTIQUE ABA
FIN DES TRAVAUX 2011

MAÎTRE DE L’OUVRAGE Kuhn constructions s.a.

CHEF DE PROJET Ralf Siegle, Gilles Vandendries

INGÉNIEUR GÉNIE CIVILE –
INGÉNIEUR GÉNIE TECHNIQUE –
CONSEIL EN ÉNERGIE –


PHOTOS -