Description
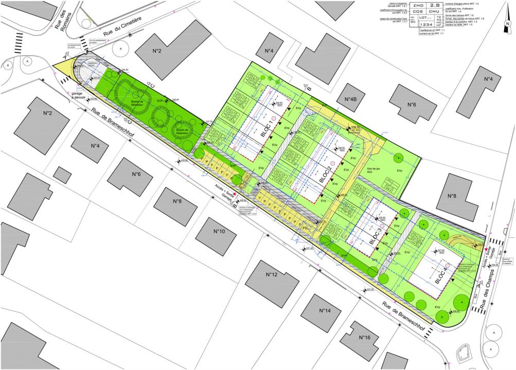
PLAN D’AMENAGEMENT PARTICULIER (PAP) POUR LA REALISATION DE 17 UNITÉS D’HABITATION (11 MAISONS UNIFAMILALES & 1 MAISON PLURIFAMILIALE À 6 UNITÉS) 1er prix
LIEU Kehlen
SURFACE - 68a
CLASSE ÉNERGÉTIQUE BBB
FIN DES TRAVAUX - MISSION PAP
MAÎTRE DE L’OUVRAGE Sermelux Metalservices Luxembourg s.a.
COORDINATEUR PROJET PROgroup s.a.
CHEF DE PROJET Pol Christophory, Bianca Nagel
BUREAU D’ÉTUDE STABILITÉ -
BUREAU D’ÉTUDE TECHNIQUE –
CONSEIL EN ÉNERGIE –
BUREAU D’ÉTUDE GESTION DE L’EAU Schroeder & Associés
PHOTOS -
